Appartamento in vendita a Lazzate VENDITA

Via Bernina - Lazzate (Monza e Brianza)
€ 298.000
  • Quadrilocale
  • 178 mq
  • 2 bagni

Appartamento in Vendita a Lazzate

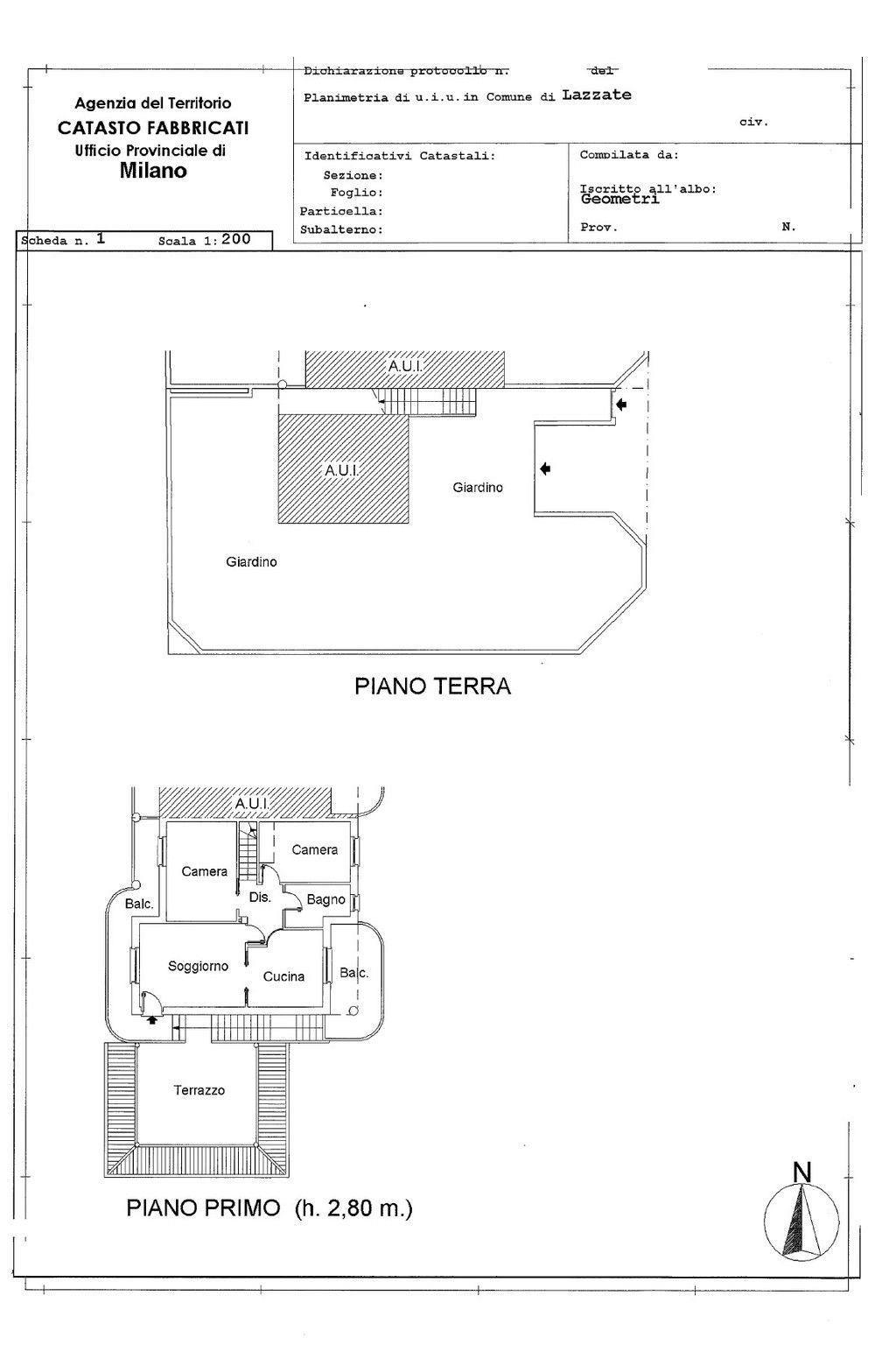
Se stai cercando una casa che coniughi indipendenza, spazio e comfort, questa è la soluzione ideale per te. Proponiamo in vendita un bellissimo immobile situato a Lazzate , con accesso pedonale e carraio completamente indipendente, che garantiscono massima privacy e zero spese comuni. Caratteristiche principali dell'immobile Ingresso indipendente Accedi alla proprietà attraverso un giardino privato e riservato. Zona giorno luminosa e spaziosa Al piano primo, l'appartamento offre un ampio soggiorno con terrazzo, perfetto per rilassarsi o ricevere ospiti, e una cucina abitabile dotata di terrazzo per godere di momenti all'aria aperta. Zona notte confortevole Due camere da letto di ottime dimensioni e un bagno completano il piano. Piano sottotetto Una comoda scala interna conduce al sottotetto open space di ampia metratura, ideale per creare uno studio, un locale hobby o una sala giochi. Questo spazio versatile rappresenta un valore aggiunto unico. Box doppio Completa la proprietà un box doppio in larghezza, perfetto per chi cerca comodità e sicurezza per i propri veicoli. Un tocco di esclusività Questo immobile possiede tutte le caratteristiche di una villa a schiera di testa , unendo la funzionalità di un appartamento con la libertà di una soluzione indipendente. La totale assenza di spese comunitarie e la gestione autonoma degli spazi lo rendono unico nel suo genere. Condizioni dell'immobileL'appartamento è in ottime condizioni e libero subito non necessita di alcun intervento di ristrutturazione ed è pronto per essere abitato .Vivi il tuo sogno. Non perdere l'occasione di visitare questa straordinaria soluzione abitativa.

LEGGI TUTTO

CONDIVIDI SUI SOCIAL

DATI PRINCIPALI

Riferimento
129704
Contratto
Vendita
Tipologia
Appartamento
Superficie
178 mq
Locali
4
Camere da letto
3
Cucina
Abitabile
Bagni
2
Piano
2 °
Totale piani
1
Box/Posto auto
Doppio

CARATTERISTICHE

Ascensore

COSTI

Prezzo
€ 298.000,00

EFFICIENZA ENERGETICA

Stato
Ristrutturato
Anno costruzione
2001
Riscaldamento
Autonomo
Classe energetica
G
IPE
198,00 kWh/m²a

A+

A

B

C

D

E

F

198,00 kWh/m²a | Classe energetica G

G

MAPPA

Lazzate comune della Bassa Brianza Occidentale

ANNUNCI SIMILI

VENDITA 20
€ 370.000
Appartamento in Vendita a Lazzate (Monza e Brianza)
  • Più di 5 locali
  • 236 mq
  • 3 bagni
VENDITA 20
€ 377.000
Appartamento in Vendita a Lazzate (Monza e Brianza)
  • Quadrilocale
  • 174 mq
  • 2 bagni