Appartamento in vendita a Lazzate VENDITA

Via Roma 31 - Lazzate (Monza e Brianza)
€ 169.000
  • Trilocale
  • 88 mq
  • 1 bagno

Appartamento in Vendita a Lazzate

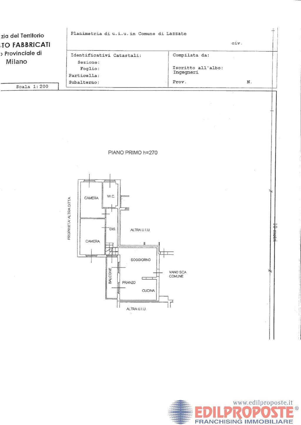
Vieni a scoprire la tua nuova casa a Lazzate!!! Luminoso appartamento di 3 locali oltre servizi e box doppio. L'immobile si trova all'interno di una signorile palazzina vicino al centro cittadino. La tua vita sarà ancora più comoda grazie alla presenza di negozi e servizi a portata di mano. L'abitazione è caratterizzata da ampi spazi o ottime finiture, garantendo un atmosfera elegante ed accogliente, al suo interno composto da soggiorno con cucina a vista, due camere da letto, bagno e balcone.Il box doppio e la cantina, aggiungono valore a questa proprietà, offrendo un ampio spazio per la tua auto o per riporre tutti i tuoi effetti personali. Goditi la tranquillità e la comodità di vivere in questa zona residenziale a due passi dal centro. Contattaci per visionare l'immobile, da una semplice telefonata, darai vita al tuo Sogno chiamato "Casa"...

LEGGI TUTTO

CONDIVIDI SUI SOCIAL

DATI PRINCIPALI

Riferimento
129696
Contratto
Vendita
Tipologia
Appartamento
Superficie
88 mq
Locali
3
Camere da letto
2
Cucina
A vista
Bagni
1
Piano
1 °
Totale piani
3
Box/Posto auto
Doppio

CARATTERISTICHE

Ascensore

COSTI

Prezzo
€ 169.000,00
Spese condominiali
€ 83,00 / mese

EFFICIENZA ENERGETICA

Stato
Ristrutturato
Anno costruzione
2008
Riscaldamento
Autonomo
Climatizzazione
Si
Classe energetica
C
IPE
86,00 kWh/m²a

A+

A

B

86,00 kWh/m²a | Classe energetica C

C

D

E

F

G

MAPPA

Lazzate comune della Bassa Brianza Occidentale

ANNUNCI SIMILI