Appartamento in vendita a La Valletta Brianza VENDITA

brusadelli - La Valletta Brianza (Lecco)
€ 145.000
  • Trilocale
  • 100 mq
  • 1 bagno

Appartamento in Vendita a La Valletta Brianza

APPARTAMENTO SPAZIOSO E IN CENTRO PAESE

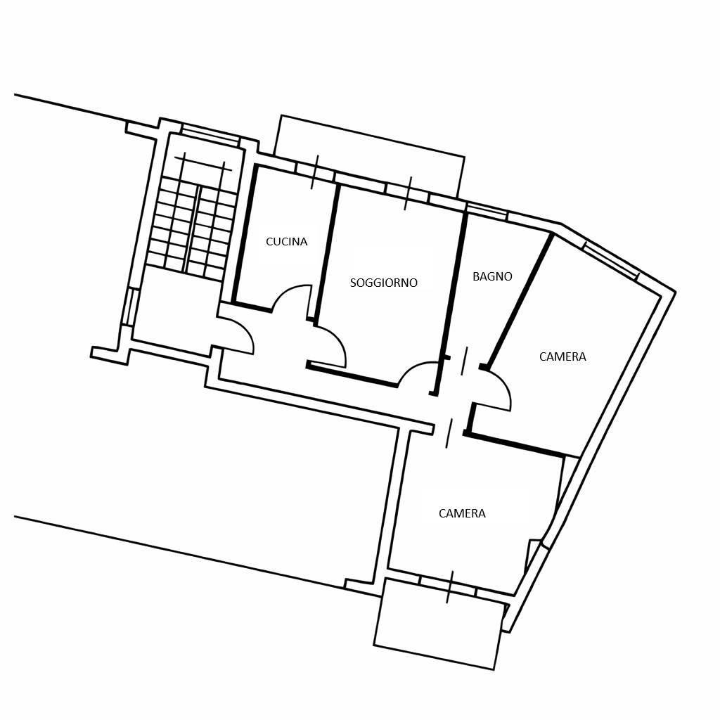
Proponiamo in vendita appartamento residenziale ideale per famiglie, caratterizzato da spazi ben distribuiti, ambienti luminosi e affacci gradevoli.
L'ingresso conduce a una zona giorno accogliente e ben organizzata, con area soggiorno e pranzo in un unico ambiente, valorizzata dalla portafinestra con accesso al balcone, perfetto come sfogo esterno e spazio vivibile.
La zona notte comprende camere ampie e funzionali, facilmente adattabili alle esigenze di una famiglia, con possibilità di cameretta per bambini o studio. Gli ambienti risultano luminosi e ben proporzionati.
Il bagno finestrato è completo e funzionale, con spazi ben sfruttati.
L'appartamento si presenta abitabile, con buone potenzialità di personalizzazione.

Al piano interrato troviamo inoltre cantina e box compresi nel prezzo

Soluzione ideale per chi cerca una casa pratica, luminosa e adatta alla vita familiare, in un contesto tranquillo.

LIBERO DA SETTEMBRE

LEGGI TUTTO

CONDIVIDI SUI SOCIAL

DATI PRINCIPALI

Riferimento
131497
Contratto
Vendita
Tipologia
Appartamento
Superficie
100 mq
Locali
3
Camere da letto
2
Cucina
Abitabile
Bagni
1
Piano
2 °
Totale piani
2
Box/Posto auto
Singolo

CARATTERISTICHE

Ascensore

COSTI

Prezzo
€ 145.000,00
Spese condominiali
€ 100,00 / mese

EFFICIENZA ENERGETICA

Stato
Abitabile
Riscaldamento
Centralizzato
Classe energetica
G

A+

A

B

C

D

E

F

Classe energetica G

G

MAPPA

La Valletta Brianza comune della Brianza Meratese

ANNUNCI SIMILI

VENDITA 17
€ 140.000
Appartamento in Vendita a Santa Maria Hoè (Lecco)
  • Quadrilocale
  • 120 mq
  • 1 bagno