Appartamento in vendita a Ceriano Laghetto VENDITA

VIA CAMPACCIO - Ceriano Laghetto (Monza e Brianza)
€ 208.000
  • Trilocale
  • 91 mq
  • 1 bagno

Appartamento in Vendita a Ceriano Laghetto

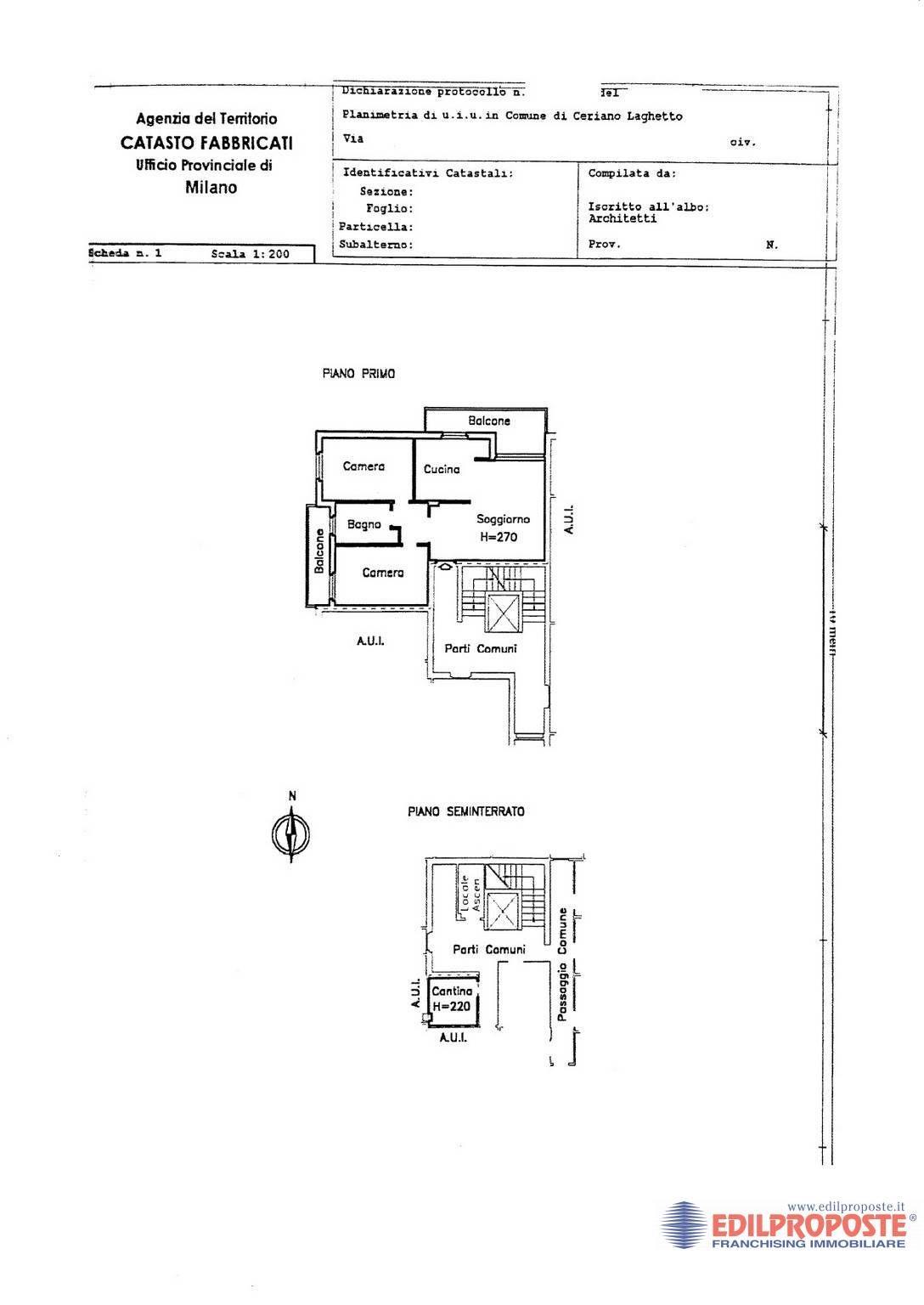
Trilocale con Box e Terrazzino a Ceriano Laghetto
Se stai cercando una casa accogliente, ben distribuita e in una posizione strategica, questa è la soluzione che fa per te!
Zona Residenziale Tranquilla, a due passi dal centro e dal Tennis Club
All'interno di una graziosa palazzina, proponiamo appartamento trilocale in ottimo stato, perfettamente suddiviso negli spazi e ideale per coppie, giovani famiglie o per chi desidera vivere in un contesto riservato ma ben servito.
Composizione Interna
Ingresso su luminoso soggiorno con cucina a vista
Affaccio diretto su terrazzino vivibile, perfetto per pranzi e cene all'aperto
Zona notte composta da
Due camere da letto ben proporzionate
Bagno finestrato con tutti i comfort
Completano la proprietà:
Box singolo privato
Cantina, comoda per riporre tutto ciò che non serve ogni giorno
Posizione Perfetta
Situato in una zona residenziale verde e tranquilla, ma vicinissimo al centro paese, ai principali servizi e al Centro Sportivo Tennis Club.
Disponibilità Immobile
L'appartamento sarà libero dal 31 dicembre 2026, perfetto anche per chi vuole investire oggi per il futuro.
Ottima soluzione per chi desidera spazi ben distribuiti e vivibili in ogni stagione.
Contattaci oggi stesso per maggiori informazioni o per organizzare una visita. Saremo lieti di accompagnarti alla scoperta di questa interessante opportunità abitativa!

LEGGI TUTTO

CONDIVIDI SUI SOCIAL

DATI PRINCIPALI

Riferimento
129737
Contratto
Vendita
Tipologia
Appartamento
Superficie
91 mq
Locali
3
Camere da letto
2
Cucina
A vista
Bagni
1
Piano
1 °
Totale piani
2
Box/Posto auto
Singolo

CARATTERISTICHE

Ascensore

COSTI

Prezzo
€ 208.000,00
Spese condominiali
€ 125,00 / mese

EFFICIENZA ENERGETICA

Stato
Abitabile
Anno costruzione
2002
Riscaldamento
Autonomo
Climatizzazione
Si
Classe energetica
G
IPE
215,28 kWh/m²a

A+

A

B

C

D

E

F

215,28 kWh/m²a | Classe energetica G

G

MAPPA

Ceriano Laghetto comune della Bassa Brianza Occidentale

ANNUNCI SIMILI

VENDITA 20
€ 149.000
Appartamento in Vendita a Ceriano Laghetto (Monza e Brianza)
  • Trilocale
  • 86 mq
  • 1 bagno