Appartamento in vendita a Barlassina VENDITA

Via Capuana - Barlassina (Monza e Brianza)
€ 199.000
  • Trilocale
  • 100 mq
  • 1 bagno

Appartamento in Vendita a Barlassina

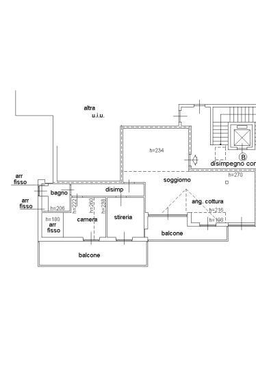
Barlassina, in palazzina di recente costruzione rifinita in mattoncino a vista, proponiamo in vendita luminoso trilocale posto al terzo ed ultimo piano servito da ascensore.
L'appartamento, viene venduto arredato come da foto e si compone di accogliente soggiorno con angolo cottura dai quali si accede al comodo balcone di ampie metrature, sfruttabile per momenti di convivialità all'aperto.
Il disimpegno notte conduce alla cameretta ed alla camera matrimoniale entrambe con uscita sul bellissimo terrazzo ed al bagno dotato di box doccia.
L'immobile è inserito in un contesto residenziale composto da due palazzine circondate da aree verdi condominiali.
Completa la soluzione una cantina.
CONSIGLIATO!

LEGGI TUTTO

CONDIVIDI SUI SOCIAL

DATI PRINCIPALI

Riferimento
127981
Contratto
Vendita
Tipologia
Appartamento
Superficie
100 mq
Locali
3
Camere da letto
2
Cucina
A vista
Bagni
1
Piano
3 °
Totale piani
3

CARATTERISTICHE

Ascensore

COSTI

Prezzo
€ 199.000,00
Spese condominiali
€ 100,00 / mese

EFFICIENZA ENERGETICA

Stato
Ristrutturato
Anno costruzione
2010
Riscaldamento
Autonomo
Climatizzazione
Si
Classe energetica
F
IPE
351,00 kWh/m²a

A+

A

B

C

D

E

351,00 kWh/m²a | Classe energetica F

F

G

MAPPA

Barlassina comune della Bassa Brianza Occidentale

ANNUNCI SIMILI

VENDITA 20
€ 493.000
Appartamento in Vendita a Barlassina (Monza e Brianza)
  • Quadrilocale
  • 177 mq
  • 3 bagni
VENDITA 11
€ 240.000
Appartamento in Vendita a Barlassina (Monza e Brianza)
  • Trilocale
  • 95 mq
  • 2 bagni