Appartamento in Classe A – ideale per Mutuo Green VENDITA

Via Sant'Ambrogio 21 - Triuggio (Monza e Brianza)
€ 215.000
  • Trilocale
  • 106 mq
  • 2 bagni

Appartamento in Vendita a Triuggio

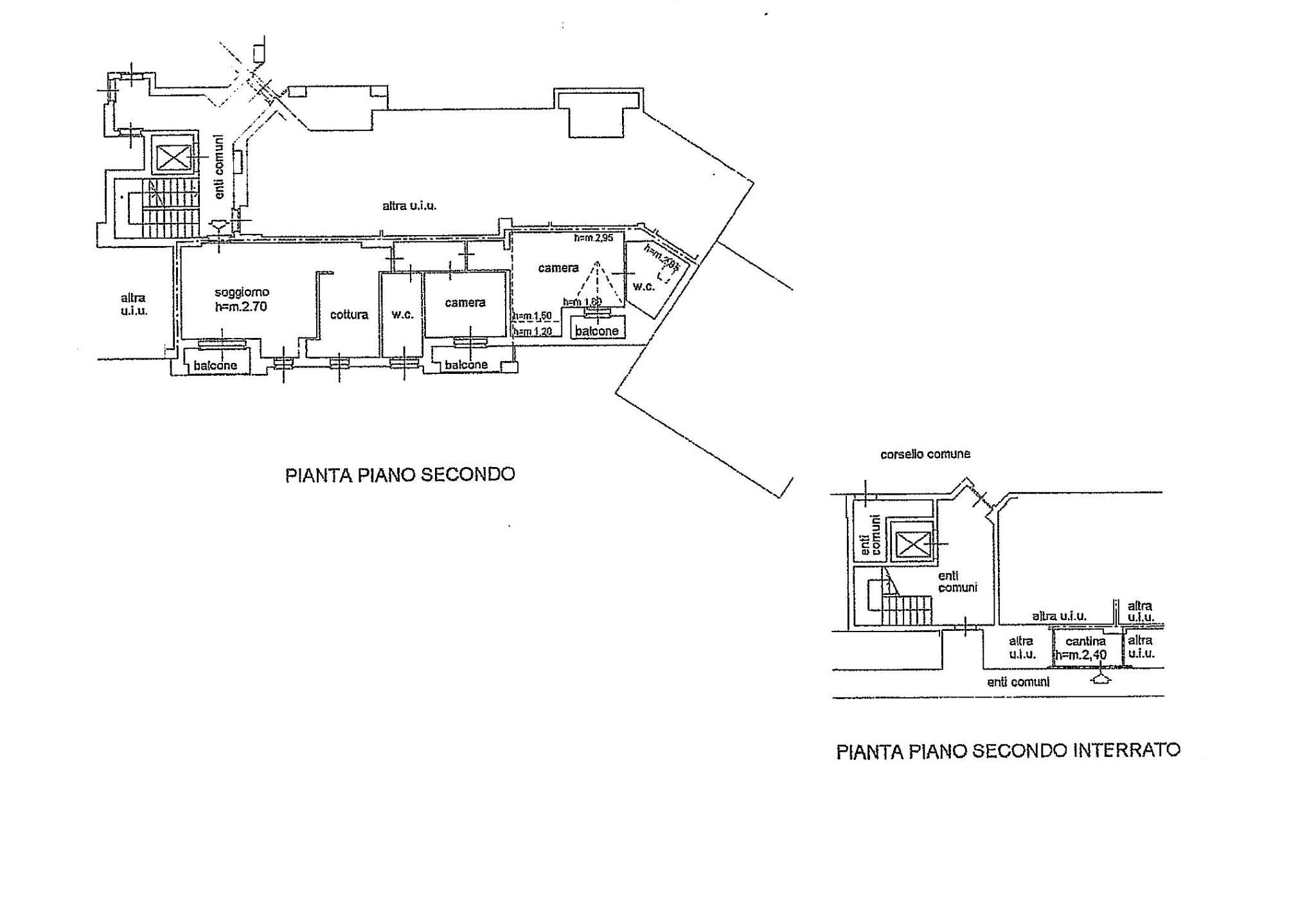
Triuggio Frazione Tregasio - In palazzina del 2014 proponiamo in vendita appartamento di 105 mq al secondo piano, in Classe energetica A, ideale per chi cerca comfort moderno, efficienza energetica e costi di gestione contenuti.
Caratteristiche principali:
- Classe energetica A
- Riscaldamento a pavimento
- Ventilazione meccanica controllata (VMC) per ricircolo e qualità dell’aria
- Finestre Schüco in alluminio
- Climatizzazione completa
- Impianti certificati
- Cantina di proprietà
- Possibilità di box doppio in larghezza in acquisto a parte
- Spese condominiali di poco superiori a €1.000 all’anno, comprensive di riscaldamento e acqua calda sanitaria: un grande vantaggio per un immobile di questa metratura.
Ideale per Mutuo Green:
Grazie all’alta efficienza energetica (Classe A), l’immobile consente di accedere ai mutui Green, oggi disponibili con tassi di interesse più vantaggiosi rispetto ai finanziamenti tradizionali. Un’opportunità concreta di risparmio sia sui consumi che sulla rata del mutuo.
Soluzione perfetta per famiglie o per chi desidera un appartamento moderno, tecnologico e con alto valore nel tempo.
Libero da ottobre.

LEGGI TUTTO

CONDIVIDI SUI SOCIAL

DATI PRINCIPALI

Riferimento
132224
Contratto
Vendita
Tipologia
Appartamento
Superficie
106 mq
Locali
3
Camere da letto
2
Cucina
Abitabile
Bagni
2
Piano
2 °
Totale piani
3
Box/Posto auto
Doppio

CARATTERISTICHE

Ascensore

COSTI

Prezzo
€ 215.000,00
Spese condominiali
€ 100,00 / mese

EFFICIENZA ENERGETICA

Stato
Abitabile
Anno costruzione
2014
Riscaldamento
Autonomo
Climatizzazione
Si
Classe energetica
A
IPE
25,30 kWh/m²a

A+

25,30 kWh/m²a | Classe energetica A

A

B

C

D

E

F

G

MAPPA

Triuggio comune della Bassa Brianza Centrale Nord

ANNUNCI SIMILI

VENDITA 12
€ 366.000
Appartamento in Vendita a Triuggio (Monza e Brianza)
  • Quadrilocale
  • 123 mq
  • 2 bagni