€ 135.000
  • Trilocale
  • 105 mq
  • 1 bagno

Appartamento in Vendita a Bellusco

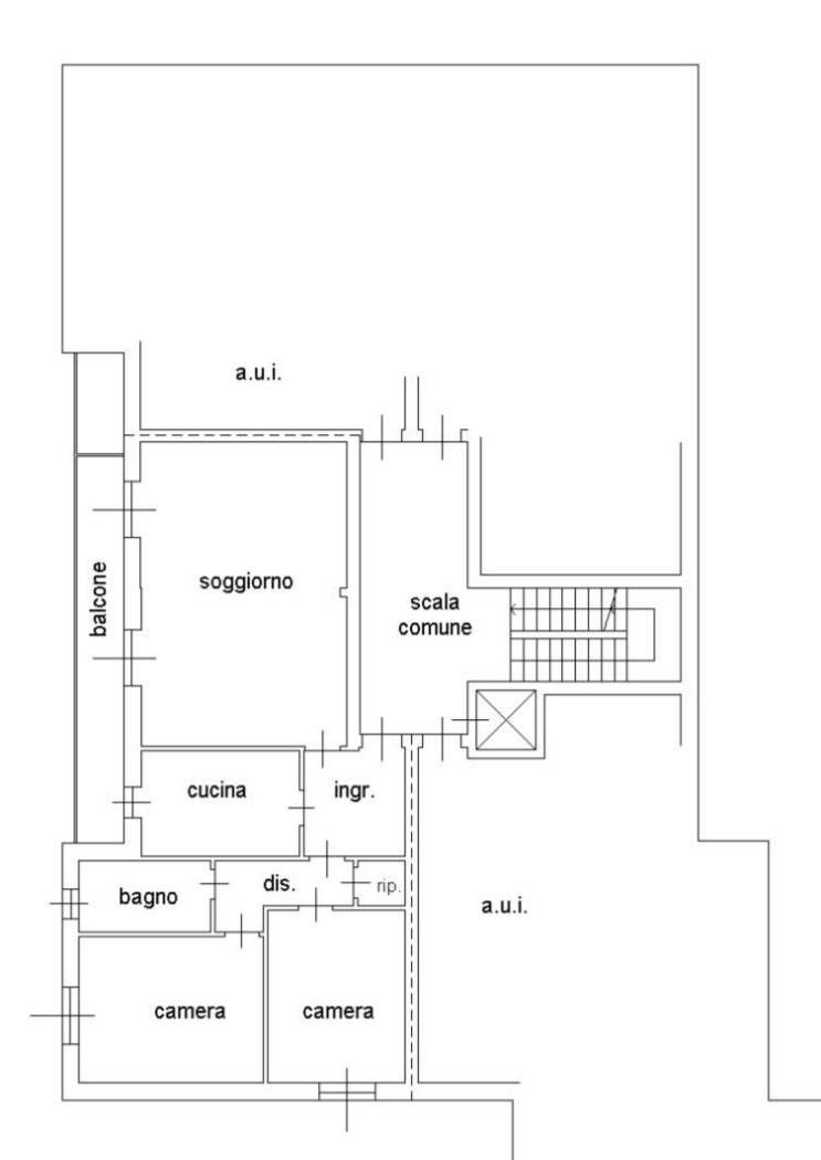
Bellusco, in posizione comoda e servita, proponiamo ampio trilocale situato al terzo piano con ascensore.
L’appartamento offre spazi ampi e ben organizzati, con luminoso soggiorno, cucina abitabile, due camere da letto e un bagno.
È presente inoltre la possibilità di ricavare un secondo bagno, per chi desidera maggiore comfort.
Completano la proprietà una cantina e un box, inclusi nel prezzo.
Soluzione interessante nel cuore di Bellusco, vicina a tutti i principali servizi.

CONDIVIDI SUI SOCIAL

DATI PRINCIPALI

Riferimento
127957
Contratto
Vendita
Tipologia
Appartamento
Superficie
105 mq
Locali
3
Camere da letto
2
Cucina
Abitabile
Bagni
1
Piano
3 °
Totale piani
4
Box/Posto auto
Singolo

CARATTERISTICHE

Ascensore

COSTI

Prezzo
€ 135.000,00
Spese condominiali
€ 100,00 / mese

EFFICIENZA ENERGETICA

Stato
Abitabile
Anno costruzione
1960
Riscaldamento
Centralizzato
Classe energetica
F
IPE
175,00 kWh/m²a

A+

A

B

C

D

E

175,00 kWh/m²a | Classe energetica F

F

G

MAPPA

Bellusco comune della Bassa Brianza Orientale o Vimercatese

ANNUNCI SIMILI

VENDITA 20
€ 165.000
Appartamento in Vendita a Bellusco (Monza e Brianza)
  • Trilocale
  • 83 mq
  • 1 bagno