Ampio Trilocale in contesto recente con box doppio incluso n VENDITA

Via Fiume - Monza, Zona San Rocco
€ 219.000
  • Trilocale
  • 96 mq
  • 2 bagni

Appartamento in Vendita a Monza

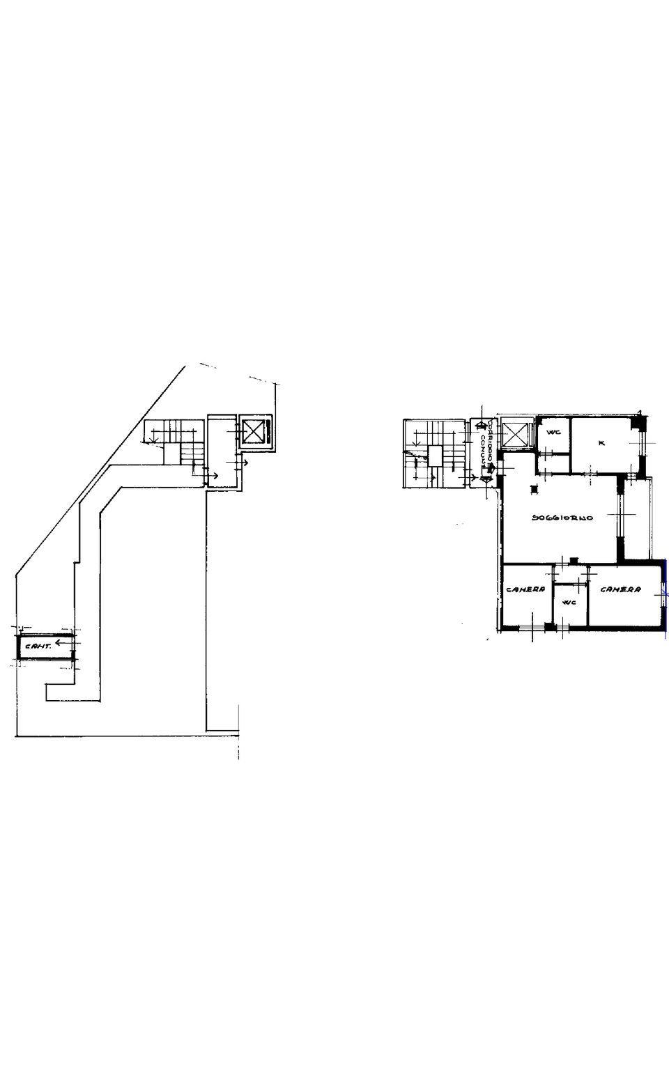
Rif: 1185 - In contesto di recente costruzione e senza barriere architettoniche proponiamo al primo piano con ascensore ampio Trilocale cosi composto: ingresso, bagno di servizio, ampio soggiorno con uscita sul terrazzino, cucina abitabile, disimpegno che separa la zona giorno dalla zona notte, bagno padronale finestrato, cameretta e camera matrimoniale. L'immobile al suo interno si presente in ottime condizioni: pavimentazione in ceramica e infissi in doppio vetro legno. inoltre l'immobile gode di un'ottima luminosità grazie alla doppia esposizione Sud/Est. Completa la proprietà un box doppio di 26 mq incluso nel prezzo e una cantina di pertinenza. LIBERO SUBITO!. Il contesto si trova in una posizione strategica, con tutti i principali servizi a pochi passi: supermercato, farmacia, banca, tabacchi, palestra, giardini pubblici, area cani attrezzata, scuole materne, elementari e medie. Inoltre, la posizione garantisce un facile collegamento verso Milano e i comuni limitrofi come Sesto San Giovanni, Cologno Monzese e Cinisello Balsamo, grazie alla vicinanza dell’autostrada A4 e delle tangenziali. In accordo con la proprietà dell'immobile, le visite saranno organizzate successivamente ad un appuntamento puramente informativo, senza alcun impegno, presso i nostri uffici con il nostro consulente finanziario esperto in mediazione creditizia, il quale vi fornirà tutte le informazioni relative ad un potenziale mutuo. Per visite o informazioni contattare: TEMPOCASA MONZA SUD Via Benvenuto Cellini 14 - Monza tel. 039 214 0075 - 348 678 4006 - mail: monzasud@tempocasa.it

LEGGI TUTTO

CONDIVIDI SUI SOCIAL

DATI PRINCIPALI

Riferimento
127202
Contratto
Vendita
Tipologia
Appartamento
Superficie
96 mq
Locali
3
Camere da letto
2
Cucina
Abitabile
Bagni
2
Piano
1 °
Totale piani
3
Box/Posto auto
Doppio

CARATTERISTICHE

Ascensore

COSTI

Prezzo
€ 219.000,00
Spese condominiali
€ 125,00 / mese

EFFICIENZA ENERGETICA

Stato
Ristrutturato
Anno costruzione
1995
Riscaldamento
Autonomo
Climatizzazione
Si
Classe energetica
D
IPE
125,17 kWh/m²a

A+

A

B

C

125,17 kWh/m²a | Classe energetica D

D

E

F

G

MAPPA

Monza comune della Bassa Brianza Centrale Sud

ANNUNCI SIMILI

VENDITA 20
€ 280.000
Appartamento in Vendita a Monza, Zona San Giuseppe
  • Trilocale
  • 102 mq
  • 2 bagni
VENDITA 17
€ 165.000
Appartamento in Vendita a Monza, Zona San Rocco
  • Trilocale
  • 82 mq
  • 2 bagni
VENDITA 20
€ 165.000
Appartamento in Vendita a Monza, Zona San Rocco
  • Trilocale
  • 85 mq
  • 1 bagno