AMPIO QUADRILOCALE CON TERRAZZO E BOX - CLASSE A4 VENDITA

Via Don Davide Colli - Triuggio (Monza e Brianza)
€ 330.000
  • Quadrilocale
  • 125 mq
  • 2 bagni

Appartamento in Vendita a Triuggio

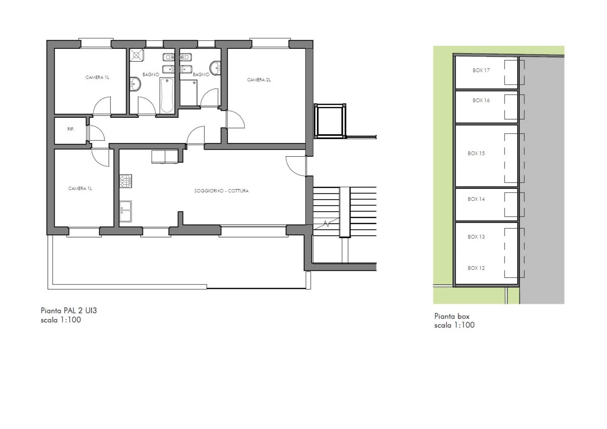
Triuggio: Nella tranquilla e verdeggiante frazione di Tregasio proponiamo, all'interno di un elegante residence di nuova costruzione costituito da 4 ville singole e due mini palazzine, uno splendido appartamento di quattro locali e doppi servizi con terrazzo e box doppio incluso nel prezzo.

L'appartamento in questione è un quadrilocale posto al piano primo ed è così composto: l'ingresso si apre sull'ampia e luminosa zona living (esposta a sud)
con una bella cucina abitabile lasciata a vista sul soggiorno e completa di portafinestra che dà accesso al terrazzo.
Attraverso un comodo disimpegno si accede alla zona notte dove troviamo due comode camere, due bagni, entrambi finestrati, la camera matrimoniale ed un utilissimo ripostiglio.

Completa la proprietà e ne accresce il valore un box doppio in lunghezza incluso nel prezzo di vendita.

La costruzione verrà realizzata con il sistema costruttivo a pannello multistrato x-lam utilizzando le più avanzate tecnologie in ambito energetico (classe A4).

Le soluzioni presenteranno il riscaldamento a pavimento (pompa di calore), cappotto termico e ventilazione meccanica controllata, in più ogni unità avrà i propri pannelli solari dedicati.

Gli infissi saranno in pvc con triplo vetro e gli oscuranti, regolabili elettricamente, in alluminio.

A livello tecnologico ogni unità sarà predisposta per l’installazione di una batteria di accumulo, antifurto e domotica.

La realizzazione di questi edifici, attraverso l’utilizzo di materiali traspiranti che consentono il passaggio del vapore acqueo, consente una durabilità paragonabile agli edifici in muratura senza bisogno di importanti interventi di manutenzione; inoltre Il Comfort e la sensazione di benessere che trasmette il legno non ha eguali.

Grazie ad un ampio e ricco capitolato sarà ampiamente possibile personalizzare ogni soluzione.

L’Agenzia Mirabella Case di Mirabella Andrea, associato F.I.M.A.A. , offre servizi di intermediazione immobiliare e consulenza con la più totale professionalità, sicurezza e scrupolosità.

Il nostro obbiettivo è seguire ogni cliente e ogni trattativa garantendo puntualità, trasparenza, serietà per tutto il percorso di tutte le trattative. Utilizzando ogni forma di pubblicità possibile da quella cartacea, al nostro sito internet sempre in aggiornamento fino ai migliori portali immobiliari.

Ci impegniamo ad accompagnare il cliente step by step, dall’inizio della trattativa fino alla Stipula del Rogito Notarile, restando sempre a disposizione anche dopo la conclusione cosicché che abbia la tranquillità e la sicurezza di affidarsi ad una figura professionale per la cura del suo bisogno patrimoniale immobiliare.

LEGGI TUTTO

CONDIVIDI SUI SOCIAL

DATI PRINCIPALI

Riferimento
130392
Contratto
Vendita
Tipologia
Appartamento
Superficie
125 mq
Locali
4
Camere da letto
3
Cucina
Abitabile
Bagni
2
Piano
1 °
Totale piani
2
Box/Posto auto
Singolo

CARATTERISTICHE

Ascensore

COSTI

Prezzo
€ 330.000,00
Spese condominiali
€ 40,00 / mese

EFFICIENZA ENERGETICA

Stato
Nuovo/In costruzione
Anno costruzione
2026
Riscaldamento
Autonomo
Climatizzazione
Predisposizione
Classe energetica
A4
IPE
351,00 kWh/m²a
351,00 kWh/m²a | Classe energetica A4

A4

A3

A2

A1

B

C

D

E

F

G

MAPPA

Triuggio comune della Bassa Brianza Centrale Nord

ANNUNCI SIMILI

VENDITA 12
€ 366.000
Appartamento in Vendita a Triuggio (Monza e Brianza)
  • Quadrilocale
  • 123 mq
  • 2 bagni
VENDITA 20
€ 290.000
Appartamento in Vendita a Triuggio (Monza e Brianza)
  • Quadrilocale
  • 200 mq
  • 2 bagni
VENDITA 20
€ 230.000
Appartamento in Vendita a Triuggio (Monza e Brianza)
  • Quadrilocale
  • 158 mq
  • 2 bagni