"Ampio Bilocale zana centro - Box" VENDITA

Via G. Donizetti 39 - Carate Brianza (Monza e Brianza)
€ 117.000
  • Bilocale
  • 75 mq

Appartamento in Vendita a Carate Brianza

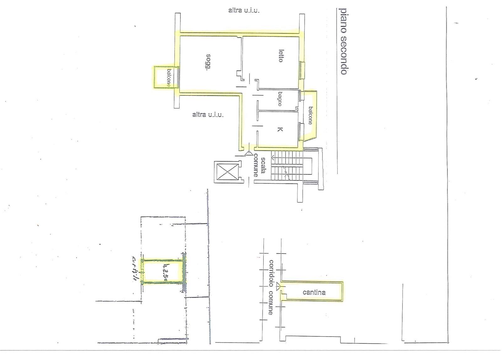
Bilocale di ampia metratura in contesto condominiale situato in zona centrale comodo con tutti i principali servizi, l'appartamento posto al secondo piano e' composto da un ingresso, soggiorno grande con balcone, cucina abitabile con secondo balcone, camera matrimoniale ampia e bagno finestrato con doccia grande, l'alloggio e' gia' stato ristrutturato internamente e sostituiti i serramenti. Vano cantina al piano interrato.
Possibilita' di acquistare un box singolo ad Euro 12.000, 00=.
L'alloggio e' disponibile da subito! Non lasciarti scappare questa occasione unica, contattaci oggi stesso per organizzare una visita! DA VEDERE!
Chiama per info e visione al 3+3+5-5+3+3+6+8+8+4 Roberto anche Whatsapp.
Tutte le informazioni qui fornite sono da ritenersi puramente indicative e non costituiscono in alcun modo elemento contrattuale. I dati relativi alle superfici sono approssimative, non hanno valore contrattuale e non sono in alcun modo vincolanti nella trattativa di vendita. I beni vengono venduti o affittati a corpo e non a misura.

LEGGI TUTTO

CONDIVIDI SUI SOCIAL

DATI PRINCIPALI

Riferimento
128182
Contratto
Vendita
Tipologia
Appartamento
Superficie
75 mq
Locali
2

COSTI

Prezzo
€ 117.000,00
Spese condominiali
€ 200,00 / mese

EFFICIENZA ENERGETICA

Classe energetica
G
IPE
379,14 kWh/m²a

A+

A

B

C

D

E

F

379,14 kWh/m²a | Classe energetica G

G

MAPPA

Carate Brianza comune della Bassa Brianza Centrale Nord

ANNUNCI SIMILI

VENDITA 20
€ 263.000
Appartamento in Vendita a Carate Brianza (Monza e Brianza)
  • Trilocale
  • 167 mq
  • 3 bagni
VENDITA 20
€ 139.000
Appartamento in Vendita a Carate Brianza (Monza e Brianza)
  • Quadrilocale
  • 132 mq
  • 1 bagno
VENDITA 20
€ 147.000
Appartamento in Vendita a Carate Brianza (Monza e Brianza)
  • Quadrilocale
  • 105 mq
  • 1 bagno