Ampio appartamento con giardino, veranda e taverna Classe B VENDITA

Via Alberto da Giussano 14 - Triuggio (Monza e Brianza)
€ 285.000
  • Trilocale
  • 139 mq
  • 2 bagni

Appartamento in Vendita a Triuggio

TRIUGGIO – VIA ALBERTO DA GIUSSANO
Ampio appartamento con giardino, veranda e taverna – Classe energetica B

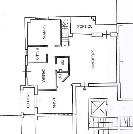
In tranquillo contesto condominiale, proponiamo elegante appartamento di 139 mq disposto su due livelli, con giardino privato su due lati, veranda coperta e box collegato internamente.

Al piano terra, l’ingresso conduce a un soggiorno molto ampio e luminoso, ideale per accogliere la famiglia e gli ospiti. La cucina abitabile si apre sulla veranda coperta, perfetta per pranzi e cene all’aperto in ogni stagione. La zona notte include due camere da letto, un bagno finestrato e un comodo ripostiglio.

Una scala interna conduce al piano interrato dove troviamo una taverna accogliente, una zona lavanderia e l’accesso diretto al box.

All’esterno, il giardino privato è curato e attrezzato con robot tagliaerba automatico e una casetta in legno per gli attrezzi, per godersi al meglio lo spazio verde.

Dotazioni:

Classe energetica B

Aria condizionata

Impianto d’allarme

Veranda coperta

Giardino su due lati

Box auto collegato internamente

Robottino tagliaerba

Casetta attrezzi in legno

Una soluzione completa, funzionale e moderna, ideale per chi cerca comfort, spazio e qualità in un contesto riservato ma non isolato.

Contattaci per maggiori dettagli o per organizzare una visita.

LEGGI TUTTO

CONDIVIDI SUI SOCIAL

DATI PRINCIPALI

Riferimento
125058
Contratto
Vendita
Tipologia
Appartamento
Superficie
139 mq
Locali
3
Camere da letto
2
Cucina
Abitabile
Bagni
2
Piano
Piano terra
Totale piani
2
Box/Posto auto
Singolo

CARATTERISTICHE

Ascensore

COSTI

Prezzo
€ 285.000,00
Spese condominiali
€ 275,00 / mese

EFFICIENZA ENERGETICA

Stato
Ristrutturato
Anno costruzione
2010
Riscaldamento
Centralizzato
Climatizzazione
Si
Classe energetica
B
IPE
175,00 kWh/m²a

A+

A

175,00 kWh/m²a | Classe energetica B

B

C

D

E

F

G

MAPPA

Triuggio comune della Bassa Brianza Centrale Nord

ANNUNCI SIMILI

VENDITA 14
€ 138.000
Appartamento in Vendita a Triuggio (Monza e Brianza)
  • Trilocale
  • 90 mq
  • 1 bagno
VENDITA 18
€ 200.000
Appartamento in Vendita a Triuggio (Monza e Brianza)
  • Trilocale
  • 107 mq
  • 2 bagni
VENDITA 6
€ 296.000
Appartamento in Vendita a Triuggio (Monza e Brianza)
  • Trilocale
  • 92 mq
  • 2 bagni
VENDITA 6
€ 357.000
Appartamento in Vendita a Triuggio (Monza e Brianza)
  • Trilocale
  • 120 mq
VENDITA 6
€ 366.000
Appartamento in Vendita a Triuggio (Monza e Brianza)
  • Quadrilocale
  • 115 mq
VENDITA 20
€ 238.000
Appartamento in Vendita a Triuggio (Monza e Brianza)
  • Trilocale
  • 100 mq
VENDITA 16
€ 140.000
Appartamento in Vendita a Triuggio (Monza e Brianza)
  • Trilocale
  • 160 mq
  • 1 bagno
VENDITA 18
€ 144.000
Appartamento in Vendita a Triuggio (Monza e Brianza)
  • Trilocale
  • 130 mq
  • 1 bagno
VENDITA 20
€ 238.000
Appartamento in Vendita a Triuggio (Monza e Brianza)
  • Trilocale
  • 140 mq
  • 2 bagni
VENDITA 16
€ 235.000
Appartamento in Vendita a Triuggio (Monza e Brianza)
  • Trilocale
  • 140 mq
  • 2 bagni