AMPIO 4 LOCALI in QUADRIFAMILIARE a MEDA - VIA LAGUNA 9 VENDITA

VIA LAGUNA , 9 - Meda (Monza e Brianza)
€ 220.000
  • Quadrilocale
  • 145 mq
  • 1 bagno

Appartamento in Vendita a Meda

Stupenda soluzione immobiliare in un piccolo contesto quadrifamiliare (tetto e facciata rifatti), in buone condizioni e con locali dalle generose metrature.
L'immobile gode di un'ottima esposizione e si trova in una via riservata, perfetta per chi cerca tranquillità e privacy ed è all'ultimo piano.
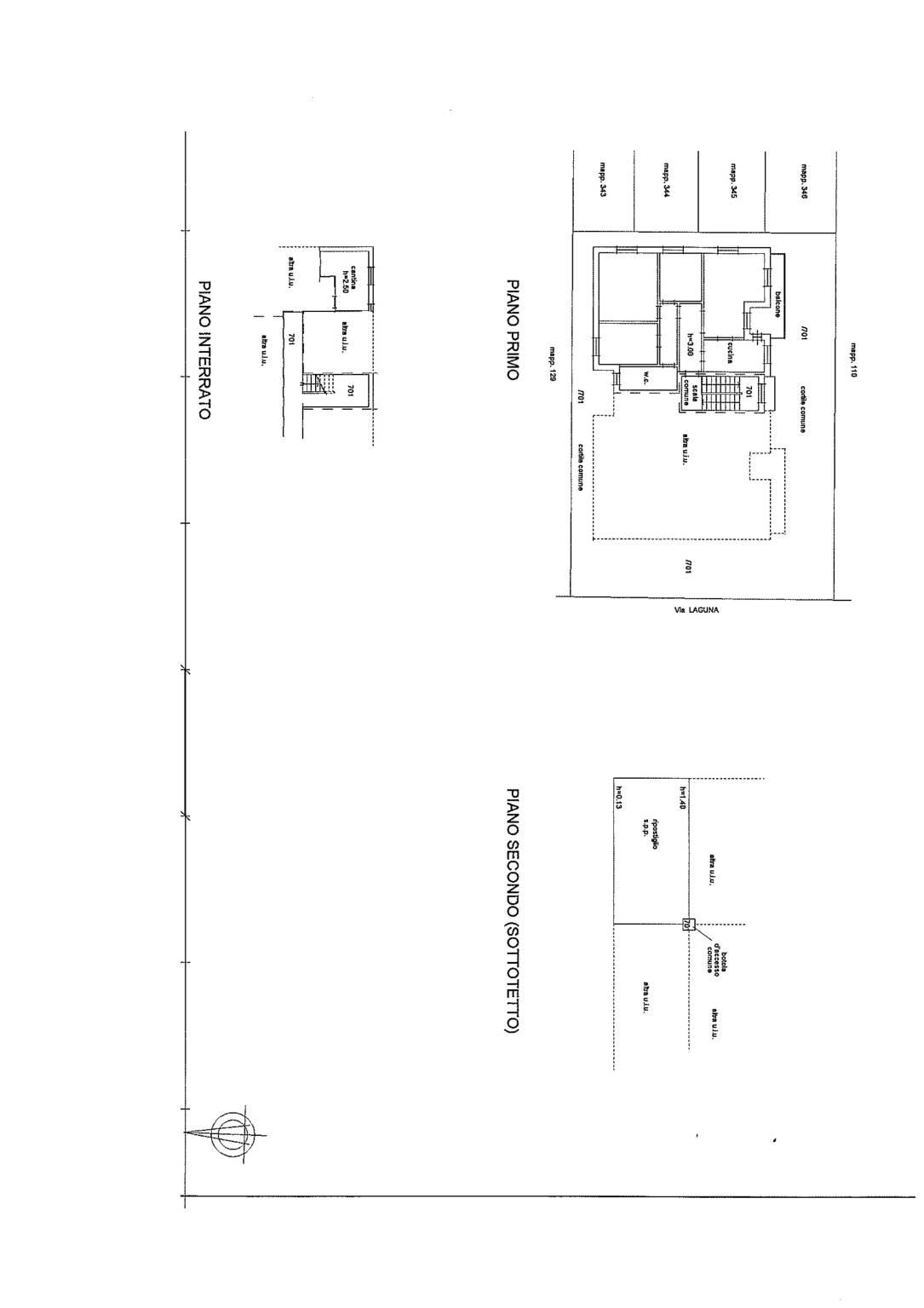
La proprietà comprende un box doppio ed un ampia cantina finestrata, ideali per chi ha bisogno di spazio extra per riporre le proprie cose. Inoltre è presente un piccolo appezzamento di giardino di proprietà (mq.50) al piano terra, perfetto per trascorrere piacevoli momenti all'aria aperta.
L'immobile è sito al 1° piano (ultimo) ed è così sviluppato: ingresso, ampio soggiorno molto luminoso con balcone (esposizione est e sud), una cucina abitabile, tre camere matrimoniali, un bagno molto grande con doccia e vasca, completa la soluzione un solaio di mq.50.
Non lasciarti sfuggire questa fantastica opportunità, contattaci per maggiori informazione e per organizzare una visita!

LEGGI TUTTO

CONDIVIDI SUI SOCIAL

DATI PRINCIPALI

Riferimento
129576
Contratto
Vendita
Tipologia
Appartamento
Superficie
145 mq
Locali
4
Camere da letto
3
Cucina
Abitabile
Bagni
1
Piano
1 °
Totale piani
2
Box/Posto auto
Doppio

CARATTERISTICHE

Ascensore

COSTI

Prezzo
€ 220.000,00
Spese condominiali
€ 108,00 / mese

EFFICIENZA ENERGETICA

Stato
Abitabile
Anno costruzione
1970
Riscaldamento
Autonomo
Classe energetica
E
IPE
152,14 kWh/m²a

A+

A

B

C

D

152,14 kWh/m²a | Classe energetica E

E

F

G

MAPPA

Meda comune della Bassa Brianza Occidentale

ANNUNCI SIMILI

VENDITA 14
€ 99.000
Appartamento in Vendita a Meda (Monza e Brianza)
  • Quadrilocale
  • 110 mq
VENDITA 20
€ 149.000
Appartamento in Vendita a Meda (Monza e Brianza)
  • Quadrilocale
  • 132 mq
  • 2 bagni