AMPIO 3 LOCALI IN CONTESTO QUADRIFAMILIARE VENDITA

Via Cava Madonnina 7 - Nova Milanese (Monza e Brianza)
€ 189.000
  • Trilocale
  • 110 mq
  • 2 bagni

Appartamento in Vendita a Nova Milanese

Via Cava Madonnina n. 7.
Zona periferica a due passi da Paderno D. no e da Cinisello B. mo.
Comodo per ingresso in Superstrada Mi-Meda e in varie tangenziali.
Vicinanze supermercato.

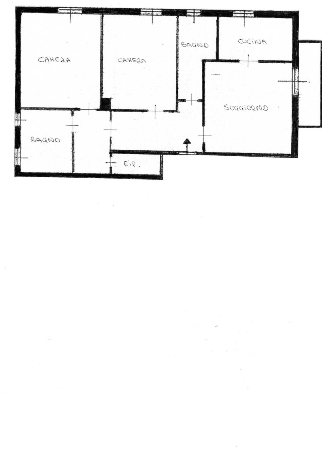
In piccola palazzina con mattoncino a vista di sole 4 unità immobiliare, disponiamo di un AMPIO e LUMINOSO appartamento di 3 locali posto al primo piano (ultimo).

La soluzione è suddivisa da:

un ampio ingresso, un soggiorno, una cucina semi-abitabile con uscita sul balcone, un bagno (finestrato), un ampio disimpegno notte dove troviamo due camere matrimoniali, un secondo bagno (finestrato) ed un ripostiglio.
Rifiniture originarie.

Completano la proprietà un box ed una cantina nel piano seminterrato ed un solaio ad secondo piano.

- Libero per settembre 2026
- Termoautonomo
- Tripla esposizione

Ideale per chi ama la tranquillità.

Consigliamo la visione.

LEGGI TUTTO

CONDIVIDI SUI SOCIAL

DATI PRINCIPALI

Riferimento
128179
Contratto
Vendita
Tipologia
Appartamento
Superficie
110 mq
Locali
3
Camere da letto
2
Cucina
Abitabile
Bagni
2
Piano
1 °
Totale piani
1
Box/Posto auto
Singolo

CARATTERISTICHE

Ascensore

COSTI

Prezzo
€ 189.000,00

EFFICIENZA ENERGETICA

Stato
Da ristrutturare
Anno costruzione
1965
Riscaldamento
Autonomo
Classe energetica
G
IPE
329,80 kWh/m²a

A+

A

B

C

D

E

F

329,80 kWh/m²a | Classe energetica G

G

MAPPA

Nova Milanese comune della Bassa Brianza Centrale Sud

ANNUNCI SIMILI

VENDITA 20
€ 460.000
Appartamento in Vendita a Nova Milanese (Monza e Brianza)
  • Quadrilocale
  • 150 mq
  • 3 bagni
VENDITA 20
€ 390.000
Appartamento in Vendita a Nova Milanese (Monza e Brianza)
  • Quadrilocale
  • 141 mq
  • 2 bagni
VENDITA 20
€ 259.000
Appartamento in Vendita a Nova Milanese (Monza e Brianza)
  • Più di 5 locali
  • 160 mq
  • 2 bagni