Albiate. Casa Indipendente con Box VENDITA

Via Nazario Sauro 6 - Albiate (Monza e Brianza)
€ 190.000
  • Quadrilocale
  • 149 mq
  • 2 bagni

Appartamento in Vendita a Albiate

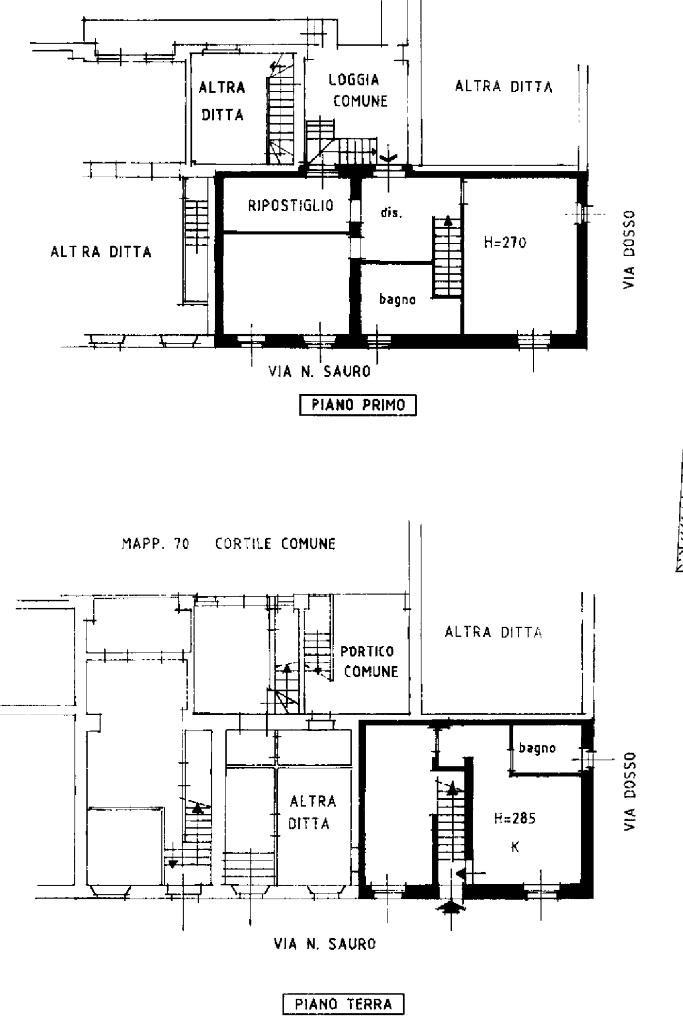
Nel cuore del comune di Albiate, proponiamo in vendita una casa di corte che unisce il fascino storico alla funzionalità moderna. L'immobile, di 132 mq, è situato al piano medio di un edificio costruito nel 1940 e ristrutturato nel 1990, garantendo così un equilibrio tra tradizione e comfort contemporaneo. La proprietà si compone di quattro locali ben distribuiti, ideali per chi cerca spazi ampi e versatili. La disposizione interna offre la possibilità di personalizzare gli ambienti secondo le proprie esigenze, rendendola una soluzione abitativa adatta a famiglie o a chi desidera uno spazio di lavoro da casa. La posizione centrale permette di godere della tranquillità tipica delle case di corte, pur essendo a breve distanza dai principali servizi e collegamenti. Un'opportunità unica per chi desidera vivere in un contesto storico senza rinunciare alle comodità moderne.

LEGGI TUTTO

CONDIVIDI SUI SOCIAL

DATI PRINCIPALI

Riferimento
130340
Contratto
Vendita
Tipologia
Appartamento
Superficie
149 mq
Locali
4
Camere da letto
3
Cucina
Abitabile
Bagni
2
Piano
1 °
Totale piani
1
Box/Posto auto
Singolo

CARATTERISTICHE

Ascensore

COSTI

Prezzo
€ 190.000,00

EFFICIENZA ENERGETICA

Stato
Abitabile
Anno costruzione
1940
Riscaldamento
Autonomo
Climatizzazione
Si
Classe energetica
G
IPE
189,00 kWh/m²a

A+

A

B

C

D

E

F

189,00 kWh/m²a | Classe energetica G

G

MAPPA

Albiate comune della Bassa Brianza Centrale Nord

ANNUNCI SIMILI

VENDITA 12
€ 299.000
Appartamento in Vendita a Seregno (Monza e Brianza)
  • Quadrilocale
  • 115 mq
  • 2 bagni
VENDITA 20
€ 259.000
Appartamento in Vendita a Seregno (Monza e Brianza)
  • Quadrilocale
  • 142 mq
  • 2 bagni
VENDITA 20
€ 260.000
Appartamento in Vendita a Macherio (Monza e Brianza)
  • Quadrilocale
  • 146 mq
  • 2 bagni