€ 367.500
  • Quadrilocale
  • 110 mq
  • 2 bagni

Appartamento in Vendita a Vedano al Lambro

Vendita diretta, no provvigioni.TRADIZIONE E INNOVAZIONE, combinazione vincente per la Residenza Mirabello Living. Capitolato innovativo, alto risparmio energetico. Extra capitolato compreso nel prezzo, serramento soggiorno scorrevole, porte interne finitura matrix, impianto VMC puntuale finito. Possibilità scelta finiture interne. E' un'esclusiva I PROGETTI tel. 039/2054154
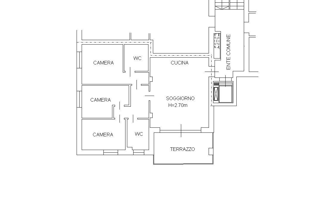
Ottimo 4 Locali composto da una zona living con cucina a vista molto luminosa e spaziosa, grazie all'ampia vetrata si accede al terrazzo coperto di mq. 13 attrezzabile per la zona pranzo, area conversazione e barbecue.
La zona notte è suddivisa in camera matrimoniale con bagno dedicato + 2 camere per ragazzi e bagno . La proprietà è completa di cantina e vi è la possibilità di scegliere il box singolo grande
Tutte le finiture sono disponibili e consultabili sul capitolato descrittivo delle opere allegato a questo annuncio
Questa nuova palazzina nel comune di Vedano al Lambro offre un ambiente tranquillo e residenziale, ideale per chi cerca una zona ben servita e in prossimità dei principali servizi e infrastrutture. Una comoda pista ciclabile permette di raggiungere il centro paese e il parco in totale serenità. Inoltre, la vicinanza a Monza e a Milano, raggiungibili in breve tempo, offre un'ampia gamma di opportunità lavorative e di svago.
L'alto risparmio energetico di questo appartamento è un ulteriore punto di forza, offrendo la possibilità di ridurre i costi delle bollette energetiche e contribuire alla salvaguardia dell'ambiente.
Fine lavori febbraio 2026

LEGGI TUTTO

CONDIVIDI SUI SOCIAL

DATI PRINCIPALI

Riferimento
126698
Contratto
Vendita
Tipologia
Appartamento
Superficie
110 mq
Locali
4
Camere da letto
3
Cucina
A vista
Bagni
2
Piano
2 °
Totale piani
3

CARATTERISTICHE

Ascensore

COSTI

Prezzo
€ 367.500,00
Spese condominiali
€ 130,00 / mese

EFFICIENZA ENERGETICA

Stato
Nuovo/In costruzione
Anno costruzione
2026
Riscaldamento
Centralizzato
Climatizzazione
Predisposizione
Classe energetica
A4
IPE
351,00 kWh/m²a
351,00 kWh/m²a | Classe energetica A4

A4

A3

A2

A1

B

C

D

E

F

G

MAPPA

Vedano al Lambro comune della Bassa Brianza Centrale Sud

ANNUNCI SIMILI

VENDITA 20
€ 540.000
Appartamento in Vendita a Vedano al Lambro (Monza e Brianza)
  • Quadrilocale
  • 182 mq
  • 2 bagni
VENDITA 20
€ 218.000
Appartamento in Vendita a Lissone (Monza e Brianza)
  • Quadrilocale
  • 121 mq
  • 2 bagni