4 LOCALI - TERRAZZO COPERTO di 34 MQ - ULTIMI APPARTAMENTI VENDITA

Limbiate (Monza e Brianza)
€ 350.000
  • Quadrilocale
  • 149 mq
  • 2 bagni

Appartamento in Vendita a Limbiate

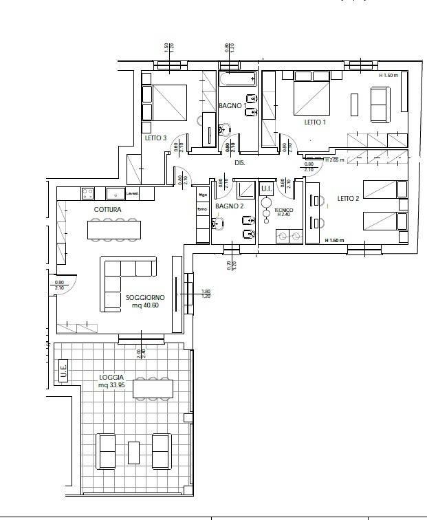
In palazzina di nuova costruzione con sistemi di involucro innovativi, antisismico e moderno, in CLASSE A di sole 10 unità abitative, in tranquilla zona residenziale e riservata ma ben servita da mezzi e servizi proponiamo appartamento sito al piano primo di 4 locali con TERRAZZO, composto da: ingresso, ampio soggiorno con cucina vista di 40 mq, TRE camere da letto matrimoniali, due bagni entrambi finestrati, comodo disimpegno, locale tecnico per la gestione degli impianti/ripostiglio e TERRAZZO COPERTO di 34 MQ! Possibilità acquisto box.
Riscaldamento autonomo a pavimento con POMPA DI CALORE SINGOLA per ogni unità immobiliare alimentata da pannelli fotovoltaici, tapparelle motorizzate, predisposizione aria condizionata ed antifurto. VMC ventilazione meccanica controllata per il ricircolo dell'aria per un ottimo comfort abitativo.
In fase di costruzione possibilità modifiche interne e personalizzazioni con SCELTA DELLE FINITURE E DEL CAPITOLATO.
Disponibili altre due tipologie di appartamenti di 3 o 4 locali, su diversi piani e metratura!
Il progetto si sviluppa per il massimo comfort abitativo dal design moderno al massimo risparmio energetico, con spazi interni distribuiti, progettati e dotato di tecnologie innovative per vivere al meglio, e in fase di avanzamento lavori, con gli ultimi 3 appartamenti rimasti per la realizzazione di 10 unità abitative totali.
- NUOVA COSTRUZIONE CLASSE A
- INNOVATO SISTEMA DI INVOLUCRO SISMO, ANTISISMICO
- COMFORT ENERGETICO e ABITATIVO
- RISCALDAMENTO A PAVIMENTO
- POMPA DI CALORE ELETTRICA AUTONOMA
- PANNELLI FOTOVOLTAICI
- VMC
- SCELTA DEL CAPITOLATO e FINITURE INTERNE
- EDIFICIO AD ENERGIA QUASI ZERO
MAGGIORI INFORMAZIONI IN UFFICIO!
Studio immobiliare Mister House di Limbiate
cell. 393/8260816 tel. 0299692265
limbiate@misterhouse.it

LEGGI TUTTO

CONDIVIDI SUI SOCIAL

DATI PRINCIPALI

Riferimento
127096
Contratto
Vendita
Tipologia
Appartamento
Superficie
149 mq
Locali
4
Camere da letto
3
Cucina
Angolo cottura
Bagni
2
Piano
1 °
Totale piani
3
Box/Posto auto
Singolo

CARATTERISTICHE

Ascensore

COSTI

Prezzo
€ 350.000,00

EFFICIENZA ENERGETICA

Stato
Nuovo/In costruzione
Anno costruzione
2027
Riscaldamento
Autonomo
Climatizzazione
Predisposizione
Classe energetica
A3
IPE
23,50 kWh/m²a

A4

23,50 kWh/m²a | Classe energetica A3

A3

A2

A1

B

C

D

E

F

G

MAPPA

Limbiate comune della Bassa Brianza Occidentale

ANNUNCI SIMILI

VENDITA 15
€ 199.000
Appartamento in Vendita a Bovisio Masciago (Monza e Brianza)
  • Più di 5 locali
  • 170 mq
  • 2 bagni