3 locali nuovo con terrazzo di 50mq e doppi servizi! VENDITA

Via Gioacchino Rossini 16 - Cesano Maderno (Monza e Brianza)
€ 294.000
  • Trilocale
  • 105 mq
  • 2 bagni

Appartamento in Vendita a Cesano Maderno

E se la tua prossima casa fosse finemente progettata e capace di offrire un equilibrio reale tra spazi interni ed esterni?

All’interno di un contesto esclusivo di sole 6–7 unità abitative nasce questo tre locali di nuova costruzione al primo piano, pronto per fine 2026, pensato per chi cerca qualità costruttiva, comfort moderno e un’abitazione che funzioni davvero nel quotidiano.

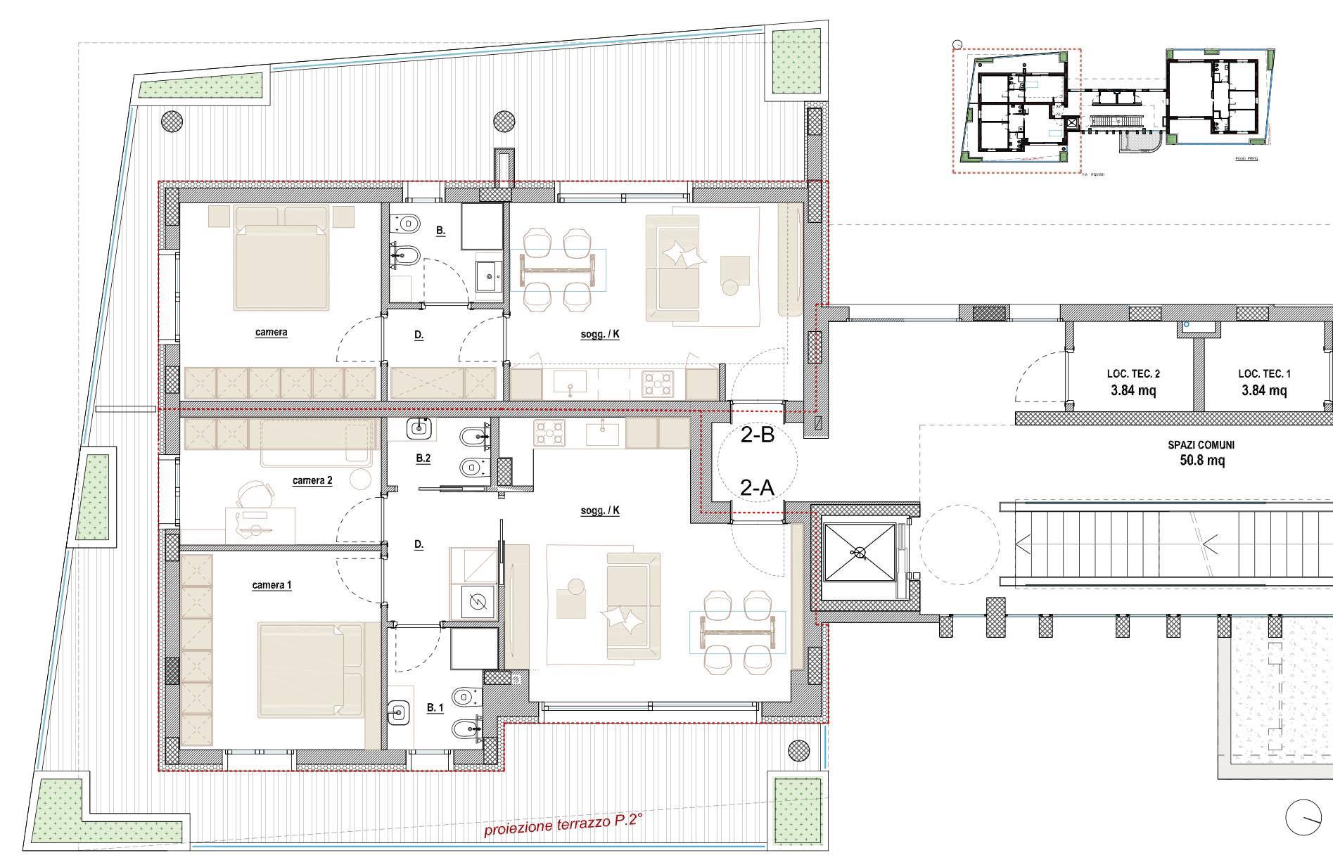
Gli interni si sviluppano con una distribuzione studiata per valorizzare ogni ambiente. La zona giorno è composta da soggiorno con cucina a vista, luminoso e ben proporzionato, progettato per vivere la casa in modo naturale e fluido. Le due camere completano una soluzione equilibrata, adatta a coppie, famiglie moderne o a chi desidera spazi ben organizzati senza rinunce.

Il vero valore aggiunto è lo spazio esterno: un terrazzo di circa 50 mq, una dimensione che eleva completamente il concetto di trilocale, trasformando l’esterno in una vera estensione della casa. Uno spazio da arredare, vivere e personalizzare, perfetto per momenti di relax, convivialità o per creare un angolo verde riservato.

Il doppio servizio aggiunge praticità e comfort, rendendo l’abitazione funzionale anche nelle dinamiche quotidiane e nel tempo.

Il contesto conferma l’impostazione di alto livello dell’intervento: una palazzina moderna e di dimensioni contenute, progettata per garantire privacy e indipendenza, valorizzata dalla scenografica scala centrale vetrata, ampia e luminosa, che separa in modo netto le singole unità. Ogni abitazione è percepita come uno spazio autonomo, non come un semplice appartamento in condominio.

Dal punto di vista tecnico, l’immobile beneficia delle più moderne tecnologie costruttive: ventilazione meccanica controllata, riscaldamento a pavimento con pompa di calore, predisposizione per il raffrescamento anche canalizzato, cabina tecnica dedicata, isolamento performante e materiali selezionati. Ampia la possibilità di personalizzazione interna, sia nelle disposizioni che nelle finiture, per realizzare una casa davvero su misura.
È inoltre possibile implementare un impianto fotovoltaico dedicato all’unità, con eventuale batteria di accumulo; attualmente è prevista la dotazione minima di legge.

Grande attenzione anche all’estetica esterna: tutti i terrazzi sono dotati di fioriere integrate, un dettaglio studiato per bilanciare l’intonaco con il verde, donando all’edificio un’immagine elegante, curata e distintiva.

Completano la proprietà cantina e locale tecnico inclusi nel prezzo. È disponibile separatamente un box singolo al prezzo di €28'000.

La posizione è quella della Sacra Famiglia, uno dei quartieri più apprezzati di Cesano Maderno: verde, residenziale, a pochi passi dal Parco Collodi, ideale per famiglie e per chi ama vivere all’aria aperta, ma allo stesso tempo comodo con tutti i servizi. La stazione ferroviaria è raggiungibile a piedi e le principali arterie stradali della città sono facilmente accessibili.

Una casa pensata con criterio, dove ogni metro è valorizzato e lo spazio esterno fa davvero la differenza. Qui la qualità si percepisce, senza bisogno di giustificazioni.

LEGGI TUTTO

CONDIVIDI SUI SOCIAL

DATI PRINCIPALI

Riferimento
128262
Contratto
Vendita
Tipologia
Appartamento
Superficie
105 mq
Locali
3
Camere da letto
2
Cucina
A vista
Bagni
2
Piano
1 °
Totale piani
3
Box/Posto auto
Singolo

CARATTERISTICHE

Ascensore

COSTI

Prezzo
€ 294.000,00

EFFICIENZA ENERGETICA

Stato
Nuovo/In costruzione
Anno costruzione
2025
Riscaldamento
Autonomo
Climatizzazione
Predisposizione
Classe energetica
A4
IPE
0,40 kWh/m²a
0,40 kWh/m²a | Classe energetica A4

A4

A3

A2

A1

B

C

D

E

F

G

MAPPA

Cesano Maderno comune della Bassa Brianza Occidentale

ANNUNCI SIMILI