3 LOCALI + LOGGIATO in ESCLUSIVA STRUTTURA DI SOLE 2 UNITA’ VENDITA

Via Monte Baldo - Cantù (Como)
€ 282.000
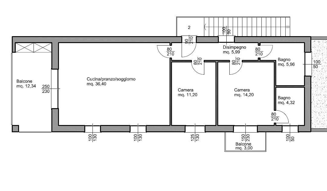
  • Trilocale
  • 95 mq
  • 2 bagni

Appartamento in Vendita a Cantù

In tranquilla zona residenziale proponiamo nuova realizzazione di una moderna palazzina composta da sole due abitazioni, entrambe libere su quattro lati, progettata per garantire privacy, indipendenza e comfort abitativo di alto livello.

Le soluzioni previste sono due trilocali con doppi servizi, caratterizzati da ambienti luminosi, spazi ben distribuiti e finiture di qualità.

Piano terra
Appartamento con ampio giardino privato di oltre 300 mq, perfetto per chi desidera vivere lo spazio esterno, ideale per momenti di relax, zona pranzo all’aperto o area gioco. € 299.000 box singolo incluso + € 6.000 posto auto privato

Piano primo
Soluzione impreziosita da suggestive TRAVI A VISTA INTERNE e da un ampio loggiato coperto, ideale come estensione della zona giorno per pranzi e momenti di relax all’aperto. € 282.000 box singolo incluso + € 6.000 posto auto privato

Entrambe le abitazioni saranno realizzate con tecnologie costruttive di ultima generazione per garantire elevato comfort abitativo ed efficienza energetica:

Classe energetica A

Impianto fotovoltaico

Cappotto termico

Serramenti in PVC basso emissivi

Tapparelle motorizzate

Soluzione ideale per chi è alla ricerca di una casa moderna, indipendente e con pochissime unità abitative, senza rinunciare all’efficienza energetica e alla qualità costruttiva.

Possibilità di personalizzazione degli spazi interni e delle finiture.

LEGGI TUTTO

CONDIVIDI SUI SOCIAL

DATI PRINCIPALI

Riferimento
129985
Contratto
Vendita
Tipologia
Appartamento
Superficie
95 mq
Locali
3
Camere da letto
2
Cucina
Angolo cottura
Bagni
2
Piano
1 °
Totale piani
1
Box/Posto auto
Singolo

CARATTERISTICHE

Ascensore

COSTI

Prezzo
€ 282.000,00

EFFICIENZA ENERGETICA

Stato
Nuovo/In costruzione
Anno costruzione
2027
Riscaldamento
Autonomo
Climatizzazione
Predisposizione
Classe energetica
A3
IPE
351,00 kWh/m²a

A4

351,00 kWh/m²a | Classe energetica A3

A3

A2

A1

B

C

D

E

F

G

MAPPA

Cantù comune della Bassa Brianza Comasca

ANNUNCI SIMILI

VENDITA 20
€ 79.000
Appartamento in Vendita a Cantù (Como)
  • Trilocale
  • 81 mq
  • 1 bagno
VENDITA 4
€ 299.000
Appartamento in Vendita a Cantù (Como)
  • Trilocale
  • 100 mq
  • 2 bagni
VENDITA 13
€ 90.000
Appartamento in Vendita a Cantù (Como)
  • Trilocale
  • 92 mq
  • 1 bagno
VENDITA 20
€ 118.000
Appartamento in Vendita a Cantù (Como)
  • Trilocale
  • 90 mq
  • 1 bagno
VENDITA 15
€ 135.000
Appartamento in Vendita a Cantù (Como)
  • Trilocale
  • 110 mq
  • 1 bagno