€ 355.000
  • Quadrilocale
  • 117 mq

Appartamento in Vendita a Lissone

Particolare Appartamento di 3/4 vani con terrazzo e balcone
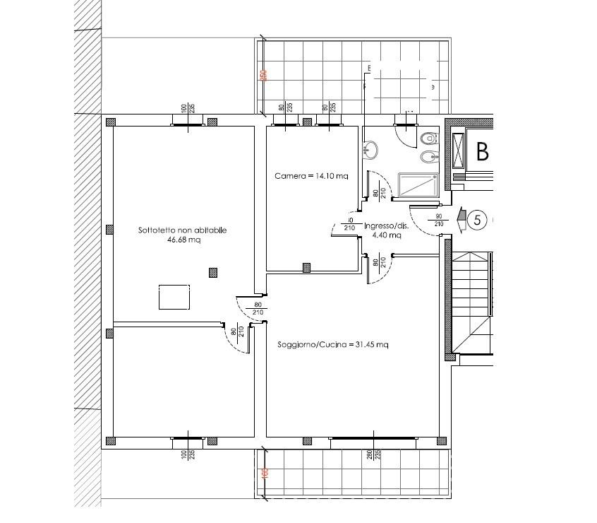
Ampio 3/4 vani con terrazzo Prossima realizzazione consegna autunno 2026- Lissone Via XX Settembre : Particolare e ampia soluzione composta da Ingresso, ampio soggiorno cucina a vista,1 camera matrimoniale, 1 bagno, terrazzo e balcone coperto fronte e retro per mq 25 totali, disimpegno che collega sullo stesso piano a due ampi vani sottotetto finestrati dove poter ricavare due stanze e una lavanderia. Lissone nelle immediate vicinanze del centro sta sorgendo un nuovo piccolo complesso residenziale esclusivo costituito da due eleganti mini-palazzine. Il Progetto prevede un totale di 12 appartamenti progettati per garantire comfort e qualità abitativa e N. 12 Box doppi a Euro 30.000 cad. e posti auto coperti singoli a euro 15.000 cad.. Le unità abitative saranno dotate di finiture moderne e personalizzabili, con luminosi spazi e ben distribuiti. tra le opzioni disponibili vi saranno appartamenti di varie metrature di 2/3/4 locali con balconi, terrazzini e giardini privati. Il complesso sarà inserito in un contesto tranquillo ma strategico grazie alla vicinanza al centro e principali servizi quali scuole, trasporti pubblici e aree verdi. E' inoltre prevista un'attenzione particolare alla sostenibilità con impianti di ultima generazione e soluzioni per il risparmio energetico. Se desiderate ulteriori specifiche su questo progetto siamo disponibili per incontri presso il nostro studio al fine di fornirvi ogni ulteriore informazione aggiuntiva

LEGGI TUTTO

CONDIVIDI SUI SOCIAL

DATI PRINCIPALI

Riferimento
126707
Contratto
Vendita
Tipologia
Appartamento
Superficie
117 mq
Locali
4
Camere da letto
2
Cucina
Abitabile
Piano
2 °
Totale piani
3

CARATTERISTICHE

Ascensore

COSTI

Prezzo
€ 355.000,00
Spese condominiali
€ 150,00 / mese

EFFICIENZA ENERGETICA

Stato
Nuovo/In costruzione
Anno costruzione
2026
Riscaldamento
Centralizzato
Climatizzazione
Si
Classe energetica
A4
IPE
351,00 kWh/m²a
351,00 kWh/m²a | Classe energetica A4

A4

A3

A2

A1

B

C

D

E

F

G

MAPPA

Lissone comune della Bassa Brianza Centrale Sud

ANNUNCI SIMILI

VENDITA 20
€ 460.000
Appartamento in Vendita a Lissone (Monza e Brianza)
  • Quadrilocale
  • 168 mq
  • 2 bagni