La nostra impresa opera da oltre quarant’anni nel settore edile con competenza e serietà, eseguendo costruzioni di immobili, ristrutturazioni e manutenzioni, in conto proprio e per conto terzi. Lavoriamo prevalentemente sul territorio della provincia di Monza e Brianza, sia in ambito civile che in quello commerciale ed industriale. Le vendite vengono effettuate direttamente dal costruttore all’acquirente finale con la possibilità di modifiche e personalizzazione delle finiture.

1 annuncio

VENDITA 17
€ 260.000
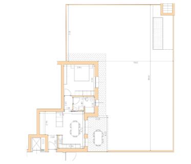
Appartamento in Vendita a Villasanta (Monza e Brianza)
Nuova costruzione Vendita Bilocale in classe A direttamente dal costruttore. disponibilità  cantine ...
  • Bilocale
  • 62 mq
  • 1 bagno